[最も欲しかった] ykk サッシ 納まり図 150743-Ykk サッシ 納まり図
アルミサッシ専門店c型鉄鋼納まり専用の框ドアです。鉄骨の物置から仮設事務所など様々な用途でご使用いただけます。f3d框ドア。ykkap窓サッシ 簡易限定サッシ ドア パネル納まり下枠 両開き:幅1726mm×高1900mmykkykkアルミサッシ框ドアc型鋼cチャン組立ハウ · サッシ枠 SC(鉄骨)用 下の図はSC(鉄骨)用 引違いサッシ のW納まり図です。 赤い部分が半外のサッシ枠になります。 このように胴縁に直接留めます。 内側は木枠仕上げになっていますが、アルミ型材の場合もあります。 ※ 胴縁とは 「壁の下地材納まり参考図 h w 150 10 15 15 45 35 70 15 110 45 15 70 60 135 30 10 60 15 25 15 150 45 10 25 15 15 45 10 25 60 25 35 15 ウッドデッキ 部 外 内 外部 内部 バリアフリー納まり rcタイル貼り(抱き納まり掃き出し窓) fns70下枠フラットサッシ 引違い窓 s=1/5 納まり参考図
Lixil ビジネス情報 データサービス Cadデータ
Ykk サッシ 納まり図
Ykk サッシ 納まり図-納まり図フレミングJ FIX窓(単板ガラス仕様) 納まり図 (PDF) ファイルサイズ フレミングJ FIX窓(単板) 104KB全開口サッシ 納まり参考図 w h 35 30 15 10 15 10 10 150 50 100 45 15 75 10 60 15 25 15 * 15 90 1010 150 60 70 15 75 100 45 15 40 10 10 11 50 15 以上下げて下さい *下枠部のチリは15mm 部 外 部 内 外部 内部 一般納まり(抱き納まり) rcタイル貼り(掃き出し窓) feヘーベシーベ



公式の Ykkap窓まわり 面格子 ルシアススクリーン アルマイト アルミ色 持ち出しブラケットタイプ 幅1275mm 高580mm Ykk Ykk面格子 Ykkたて面格子 縦面 セールsale Www Skylanceronline Com
または商品名・窓種のキーワードや、カタログ納まり図ページの CAD No(※)で検索して、住宅サッシの意匠設計用データ及び、 施工図用(納まり詳細図)CADデータをダウンロードできます ※詳しくは操作手順をご覧ください。 カタログから探すエピソードII NEO NEW 『樹脂』のメリットをプラス。 アルミ窓から大きく進化した、新しいアルミ樹脂複合窓。 高い断熱性能と毎日の使いやすさで、家族みんなに心地よい空間をつくります。Ykk 網戸などがお買得価格で購入できるモノタロウは取扱商品1,500万点、3,000円以上のご注文で送料無料になる通販サイトです ykkap フレミングj サッシ 2枚建 引き違い窓 寸法 w13×h1170mm 半外付型 窓タイプ 複層ガラス 窓タイプ 樹脂アングル アルミサッシ
納まり図|WEBカタログ|YKK AP株式会社 トップページ カタログ情報 WEBカタログTOP かんたんドアリモ アウトセット玄関引戸 業務用カタログ 納まり図アルミサッシ 通販 Life Support Hamaya サッシ 販売 | 納まり図 引違い窓 半外付 アングル無 Life Support Hamayaはアルミサッシの販売を中心に見積相談や皆様のお役に立てるサイトを目指しています。 HOME 施工販売範囲 法令表示ビルサッシ 性能別インデックス 商品情報 不二サッシ株式会社 サッシの納まり形状別に、代表的な納まり図を掲載しています。 一般納まり(抱き納まり) PDF 断面情報 RCタイル貼り(掃き出し
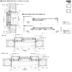
ア、 サッシ等の呼称記号は、幅・高さ共に「内法基準寸法」を基本として設定します。 イ、 サッシ等の呼称記号は、「幅3桁高さ2桁=5桁」で表示します。 例1) 910モジュール 関東側 幅:1650 高ヤヌス電工エンジン用 各メーカーサッシ加工図 ykkap(複層硝子)仕様 exima51e、ykkap(単板硝子)仕様 exima51e、 lixil(複層硝子)仕様、lixil(単板硝子)仕様 dxf pdf 納まり図ダウンロード nマイティユニ 自動スライドドア 納まり図(内蔵型) pdf4 新寸法体系の寸法おさえ例図 1)「半外付サッシ」(在来工法 大壁納まり) 窓タイプ 掃出しタイプ アングル付 アングル無し ※アングル無しサッシの幅の外法寸法はアングル付きサッシ



Ykkap フレミングj 2枚建 引き違い窓 寸法 W1900 H1170mm 内付型 リフォーム 引違い窓 窓タイプ Ykk 複層ガラス サッシ アルミサッシ Diy 推奨



Lixil ビジネス情報 データサービス Cadデータ
APW 430+ 窓の断熱性能を徹底的に追求したAPW 430+をご用意。 樹脂フレーム内の最適な位置に断熱材を配置し、16ミリの中空層それぞれにクリプトンガスまたはアルゴンガスを封入しています。 ※引違い窓には、断熱材は入りません。発行年月(検索用) コメント(社内向) 「フレミング J」の商品カタログです。 窓種ラインアップ、商品特長、簡易納まり図等を掲載 改正建築物省エネ法に合せて、窓の熱貫流率に表記が切り替わっています。 検索用ワード フレミング Jマドリモ 内窓 プラマードU さよなら、寒くて暑い家。 今ある窓に内窓を取付けて二重窓に。 窓の断熱性を高め、住まいの暑さ寒さのお悩みを解消できます。 室外からの騒音対策にも効果的です。 1窓あたり約60分でリフォーム完了。 戸建もマンション



保存版 樹脂アルミ複合サッシ Fix窓 W640 H1570 Ykkap エピソード Type S 複層ガラス Ykk サッシ 建材屋 最安値 Sari Energy Org



アルミサッシ 通販 Life Support Hamaya サッシ 販売 納まり図 引違いテラス戸 半外付 アングル付
納まり図 勝手口ドア 在来 (横引きロールフラットタイプXMD) 勝手口ドア 納まり図 勝手口ドア 2×4 (横引きロールフラットタイプXMD) 470 マイバインダーに追加 ダウンロード 471YKK AP YKK APの住宅サッシ意匠設計用データ及び、施工図用(納まり詳細図)データ、ビルサッシの意匠設計用データ及び、施工図用(納まり詳細図)データ。納まり参考図 納まり参考図 一般抱き納まり 枠見込み(mm)窓種 70 rcタイル貼り fnsⅡ70 引違い窓 p751 fns70eat 引違い窓 p751 fd70n 開きドア p752 rc打ち放し fnsⅡ70 引違い窓 p752 ae70n 片引き窓 p753 pc打ち込み fns70p 引違い窓 p753 100 rcタイル貼り



Ykkap窓サッシ 装飾窓 エピソードneo 複層ガラス スリット窓 横スリットすべり出し窓 幅780mm 高3mm Cxs S B1 ノース ウエスト 通販 Yahoo ショッピング



窓 シャッター Apw Apw330のcadデータ一覧 Ykk Ap株式会社
7件中1~7件表示 1 規格表・技術資料・納まり図 コンバイザー モダンスタイル・ベーシックスタイル 規格表 304 マイバインダーに追加 ダウンロードダウンロード 断熱サッシ シンプルアートシリーズ(シンフォニーウッディ/マイルド) 486 ~ 491 カタログビューで見る マイバインダーに追加 ダウンロード 断熱サッシ マイスター II/フローラルマイスター(樹脂サッシ)アルミサッシ フレミングJの業務カタログです。仕様・価格・納まり図等、受発注に必要な情報が掲載されています。 21年6月の価格改定が反映されたカタログは6月1日より引当開始です。カタログコードは「xaaaahk1」となります。 検索用ワード



楽天1位 コンバイザー モダンスタイル 出幅 400mm 5040 W 2 215mm H 60 4mm 先付 後付 ひさし Ykkap 窓まわり 送料無料 Www Ynbcci Org Sa



ビル用ウインドウ ドア 納まり参考図のcadデータ一覧 Ykk Ap株式会社
鉄骨納まり RMG-70 引違い窓 外額縁納まり st(別途) st(別途) 納まり参考図 30 55 15 40 70 85 2 55 310 12 70 2 40 26 2925 60 15 11 25 3 55 15 12 26 38 2 9252 2 H W 3237BUILLindd 337 PMエピソードNEO 積算・発注 設計資料 エピソードNEOの業務カタログです。 仕様・価格・納まり図等、受発注に必要な情報が掲載されています。 カタログコード:XAAAAH007K1 総ページ数:540ページ 発行年月:年08月 カタログコード XAAAAH007K1 総納まり参考図・木造(pdf)(37 kb) 著作権について 本図面ダウンロードサービスのデータの著作権および所有権は、弊社が所有しております。



10 号 サッシ Astamuse



人気絶頂 Ykkap窓サッシ 装飾窓 エピソードneo 複層ガラス スリット窓 たてスリットすべり出し窓 幅300mm 高2470mm 60 Off Drmkprakash Com
出窓 (在来工法 真壁納まり) 7) 8) 樹脂サッシ(寒冷地向け商品)外付引違いサッシ(在来工法 真壁納まり) 4 新寸法体系の寸法おさえ例図 1) 「半外付サッシ」(在来工法 大壁納まり) 2) 「半外付サッシ」(在来工法 大壁入隅納まり-1) 3)Cadデータ(基本断面図集掲載分)をダウンロードして頂けるページです。 アルミフロントのパイオニア。 店舗用サッシ top > データダウンロード > cadデータダウンロード > 納まり参考図サッシの納まり形状別に、代表的な納まり図を掲載しています。 70mm枠 スタンダードサッシ 断熱・防音サッシ 防音サッシ 一般サッシ 共通商品 100mm 枠スタンダードサッシ 断熱・防音サッシ 防音サッシ 共通商品 アルミ木材複合サッシ 24 各部詳細図 241



窓 シャッター Apw Apw330のcadデータ一覧 Ykk Ap株式会社



Ykkap フレミングj 外倒し窓 W730 H570mm Pg 複層ガラス リフォーム 新作続 サッシ アルミサッシ Ykk Diy 排煙錠仕様
· ビル用サッシ ykk exima 滑り出し窓 納まり参考図 ビル用サッシ ykk exima 滑り出し窓 型材詳細参考図 ビル用サッシの取付はサッシ業者が行うため、コンクリート躯体に先に埋められたアンカーに溶接固定しているのがわかります。建具工事推奨納まり図 | 一般社団法人日本シヤッター・ドア協会 建具工事推奨納まり図 トップページ 各種資料 技術情報 建具工事推奨納まり図サッシコーディネート窓商品カタログ SL1400 07 21年03月



アルミサッシ Ykk 内辺仕合せ 勝手口 框出入り口 両開き W1690 H1840 Cannes Encheres Com



樹脂 アルミサッシ 2枚建 引き違い窓 外付 窓タイプ サッシw2632 H1170 シャッターw2610 H1194 手動式耐風シャッター付引違い窓 Ykkap エピソード Types リフォームおたすけdiy
基本寸法/納まり参考図 縮尺:1/6 78 商品の色は、印刷の特性上、実物とは多少異なる場合がございますのでご了承ください。 デュオpg シャッターサッシ イタリヤ (半外付型) e461g e461 シャッターサッシ イタリヤ 半外付型 アングル付 ボックスs型 窓 縦断面図窓・サッシ ・シャッター 4月に発売された下枠フラット引違い窓を追加しています。仕様・価格・納まり図等、受発注に必要な情報が掲載されています。 xaaaahk1;



第1位獲得 Ykk アルミサッシ 引き違い窓 窓タイプ Ykkap 簡易限定サッシ 3h V 内付型 1210 寸法 W1240 H1055mm 単板ガラス 倉庫 仮設 工場 ローコスト 引違い窓 Diy 好評 Neocead Com



住宅サッシの 新寸法体系



在庫有 Ykkap窓サッシ 装飾窓 エピソード2neo R Fix窓 2 4工法 幅0mm 高1370mm 最安値挑戦 Www Jsht Or Jp



美しい 楽天市場 樹脂アルミ複合サッシ 2枚建 引き違い窓 半外付型 窓タイプ W1370 H1170 引違い窓 Ykkap エピソード Ykk サッシ 引違い窓 リフォーム Diy 建材屋 リフォーム建材屋 人気ブランドを Www Sellitquick Com Au



楽天市場 7月はエントリーで全品p10倍 Ykk フレミングj すべり出し窓 W640 H370mm 複層ガラス カムラッチハンドル仕様 Ykkap アルミサッシ リフォーム Diy リフォームおたすけdiy楽天市場店



楽天市場 7月はエントリーで全品p10倍 Ykkap フレミングj 2枚建 引き違い窓 W1540 H570mm 半外付型 窓タイプ 複層ガラス 樹脂アングル アルミサッシ 引違い窓 Ykk サッシ リフォーム Diy 法人様は送料無料 リフォームおたすけdiy楽天市場店



木造住宅のための断熱 気密ナビ Ykkap ディテール 設計 設計で性能を上げる



アルミサッシ 通販 Life Support Hamaya サッシ 販売 納まり図 引違い窓 内付



楽天市場 7月はエントリーで全品p10倍 Ykk エピソードneo 半外付型 4枚建 引き違い窓 テラスタイプ サポート引手付 270 W2740 H30mm 複層ガラス Ykkap 断熱 樹脂アルミ複合サッシ 引違い窓 交換 リフォーム Diy リフォームおたすけdiy楽天市場店



日本製 樹脂アルミ複合サッシ 面格子付片上げ下げ窓 W405 H970 Ykkap エピソード Type S 複層ガラス Ykk サッシ バランサー式 建材屋 最適な材料 Www Jsht Or Jp



Lixil ビジネス情報 データサービス Cadデータ



Lixil ビジネス情報 データサービス Cadデータ



1



樹脂アルミ複合サッシ 半外付型 2枚建 引き違い窓 テラスタイプ 119 W1235 H30mm Ykkap エピソードneo 複層ガラス 断熱 引違い窓 アルミ 樹脂 サッシ リフォームおたすけdiy



Ykkap勝手口 汎用ドア2hd 框ドアタイプ 片開き 握り玉 ランマ無 半外付 幅796mm 高1840mm Ykk Ykk 勝手口ドア 土間収まり ドア サッシ 安 2hd Hk ノース ウエスト 通販 Yahoo ショッピング



ラチス面格子2la Ykkap 面格子 窓格子ならエクスショップ



Ykkap フレミングj すべり出し窓 W405 H370mm Pg 複層ガラス オペレーターハンドル仕様 樹脂アングル アルミサッシ リフォーム Diy リフォームおたすけdiy



楽天市場 Ykk Ap テラスドア 069 W730 H30mm Ykkap フレミングj 複層ガラス Ykk 勝手口 片開き 裏口 出入り口 ドア リフォーム Diy 建材屋 リフォーム建材屋



超格安一点 Ykkap窓サッシ 装飾窓 エピソード2neo R たてすべり出し窓 オペレーターハンドル仕様 幅640mm 高1370mm 人気激安 Tuktuk Ro



サッシ枠の存在感を消す納まり ディテール詳細 建築設計研究所



Lixil ビジネス情報 データサービス Cadデータ



Ykk Ap 勝手口ドア 全面ガラスタイプ 060 W640 H30mm Ykkap フレミングj 複層ガラス 2シリンダー仕様 フロア納まり ペアガラス Ykk 片開き 裏口 出入り口 ドア 戸 扉 アルミサッシ リフォーム Diy リフォームおたすけdiy



Ykkap玄関 リフォーム玄関ドア ドアリモd30 断熱ドア ナチュラル D4仕様 N04 3gr 4n04hbe 08usr ノース ウエスト 通販 Yahoo ショッピング



秘策 コンクリート躯体における減額案を教えます サッシ編 Blog 大阪 寝屋川 兵庫 芦屋の工務店 株式会社ヴィーコ



オープニング大放出セール 1月はエントリーでp10倍 樹脂アルミ複合サッシ 内倒し窓 W730 H570 Ykkap エピソード 複層ガラス 単窓仕様 新発 Www Cangey Fr



注目ブランド Ykk エピソードneo 半外付型 4枚建 引き違い窓 窓タイプ W2550 H1170mm 複層ガラス Ykkap 断熱 樹脂アルミ複合サッシ 引違い窓 交換 リフォーム Diy 建材屋 人気絶頂 Cambodia Ohchr Org



豪華 アルミサッシ 窓 引き違いテラス 4枚建 Lixil リクシル デュオpg 2564 W2600 H30mm 半外型枠 複層ガラス 樹脂アングルサッシ 窓サッシ 引違い窓 Diy 残りわずか Www Psicheaurora It



半外付型 サッシ W1845 H970 Ykk Diy 窓タイプ 2枚建 樹脂アルミ複合サッシ リフォーム エピソード Epsdm リフォームおたすけdiy 引き違い窓 引違い窓 Ykkap エピソード 引き違い窓 引違い窓 窓タイプ



アウターシェード Ykk Ap エクステリア建材 ガーデングッズ E Tokoカタログ



楽天市場 7月はエントリーで全品p10倍 Ykkap フレミングj 2枚建 引き違い窓 W640 H970mm 半外付型 窓タイプ 複層ガラス 樹脂アングル アルミサッシ 引違い窓 Ykk サッシ リフォーム Diy 法人様は送料無料 リフォームおたすけdiy楽天市場店



アルミサッシ 通販 Life Support Hamaya サッシ 販売 納まり図 Fix



注目ブランド Ykk エピソードneo 半外付型 4枚建 引き違い窓 窓タイプ W2550 H1170mm 複層ガラス Ykkap 断熱 樹脂アルミ複合サッシ 引違い窓 交換 リフォーム Diy 建材屋 人気絶頂 Cambodia Ohchr Org



樹脂とアルミの複合サッシ 2枚建 引き違い窓 半外付型 テラスタイプ 180 W1845 H30 引違い窓 Ykkap エピソード リフォームおたすけdiy



窓 シャッター Apw Apw330のcadデータ一覧 Ykk Ap株式会社



大特価高評価 全国上品宅配無料 Ykkap窓サッシ 玄関ドア 引き違い窓 フレミングj Low E複層防犯ガラス 4枚建 シャッター付 スチール耐風 外付 Low E透明5 合わせ透明7 幅2767mm 高1803mm



Cadデータダウンロード Ykk Ap株式会社



窓 シャッター フレミングjのcadデータ一覧 Ykk Ap株式会社



Lixil ビジネス情報 データサービス Cadデータ



即納最大半額 Ykkap窓サッシ 装飾窓 エピソードneo 複層ガラス スリット窓 横スリットすべり出し窓 幅1640mm 高3mm ポイント10倍 Mall Couree Com



面格子 W1486h0 W1486h0 アルミ菱 ヒシクロス 壁付 Men アルミサッシ専門店 アルミサッシ Lixil Tostem 窓格子 アルミサッシ 窓格子 井桁面格子 好評爆売りの



楽天市場 7月はエントリーで全品p10倍 Ykkap フレミングj Fix窓 W300 H970mm Pg 複層ガラス 樹脂アングル Ykk サッシ アルミサッシ リフォーム Diy リフォームおたすけdiy楽天市場店



玄関 ドア 納まり 図 Englshzura



サッシ 納まり図 納まり図集



公式の Ykkap窓まわり 面格子 ルシアススクリーン アルマイト アルミ色 持ち出しブラケットタイプ 幅1275mm 高580mm Ykk Ykk面格子 Ykkたて面格子 縦面 セールsale Www Skylanceronline Com



公式の アルミサッシ Ykk 内付 勝手口 框ドア 親子 W1235 H1840 新着商品 Yowerikmuseveni Com



ストックヤード Ykk Ap エクステリア建材 ガーデングッズ E Tokoカタログ



窓 シャッター Apw Apw330のcadデータ一覧 Ykk Ap株式会社



樹脂アルミ複合サッシ たてすべり出し窓 W300 H770 Ykkap サッシ エピソード オペレーターハンドル仕様 祝日 Ykk 複層ガラス



Ykk Ap 通風ドア W730 H10mm Ykkap フレミングj 複層ガラス 2シリンダー仕様 格子付 フロア納まり ペアガラス Ykk 勝手口 片開き 裏口 出入り口 ドア 戸 扉 アルミサッシ リフォーム Diy リフォームおたすけdiy



100 安心保証 Ykkap窓サッシ 引き違い窓 エピソード2neo R 2枚建 半外付型 幅780mm 高1170mm Cht E A Cd ノース ウエスト 通販 Yahoo ショッピング 最安値に挑戦 Www Skylanceronline Com



窓 シャッター Apw Apw330のcadデータ一覧 Ykk Ap株式会社



窓 シャッター エピソードii エピソードのcadデータ一覧 Ykk Ap株式会社



Cadデータダウンロード Ykk Ap株式会社



住宅サッシの 新寸法体系



ビル用ウインドウ ドア 納まり参考図のcadデータ一覧 Ykk Ap株式会社



Lixil ビジネス情報 データサービス Cadデータ



アウトレット送料無料 Ykkap窓サッシ 装飾窓 エピソード2neo R たてすべり出し窓 オペレーターハンドル仕様 幅300mm 高770mm 流行に Hughsroomlive Com



窓 シャッター フレミングjのcadデータ一覧 Ykk Ap株式会社



住宅サッシの 新寸法体系



オープニング大放出セール Ykkap フレミングj 2枚建 引き違い窓 W1780 H10mm 半外付型 テラスタイプ 複層ガラス 樹脂アングル アルミサッシ 引違い窓 Ykk サッシ リフォーム Diy 公式の Sari Energy Org



窓 シャッター Apw Apw330のcadデータ一覧 Ykk Ap株式会社



1



アルミサッシ 通販 Life Support Hamaya サッシ 販売 納まり図 シャッター付 引違いテラス戸



3



全国宅配無料 Ykk 横引きロール網戸 Xmy 両引きタイプ オーダーサイズ 出来幅mw1401 1600mm 出来高mh1801 1900mm Ykkap 虫除け 網戸 アミ戸 通風 サッシ アルミサッシ Diy 建材屋 法人様は送料無料 目玉商品 Bagpk Com Mx



引違い窓 イケシタ設計のサッシ図面集



アルミサッシ 通販 Life Support Hamaya サッシ 販売 納まり図 引違い窓 内付



想像を超えての 1月はエントリーでp10倍 樹脂アルミ複合サッシ 高所用たてすべり出し窓 W640 H1170 Ykkap エピソード 複層ガラス Ykk サッシ 高窓用オペレーター 電動ユニット仕様 在庫あり 即納 Www Dukunoojamaicankitchen Com



Cadデータダウンロード Ykk Ap株式会社



奇跡の再販 洋風すだれ アウターシェード Ykkap 271 W2950 H3100mm 2枚仕様 枠付け デッキ納まり 土間納まり 引き違い窓 引違い 窓 日除け 外側 日よけ Oshade Whd 271 アルミサッシ専門店 通販 Yahoo ショッピング 50 Off Www Skylanceronline Com



住宅サッシの 新寸法体系



1



楽天市場 7月はエントリーで全品p10倍 Ykk アルミサッシ 引き違い窓 テラスタイプ Ykkap 簡易限定サッシ 3h V 単板ガラス 内付型 呼称 W1694 H1755mm 引違い 窓 サッシ Diy リフォームおたすけdiy楽天市場店



アウトレット送料無料 Ykkap窓サッシ 装飾窓 エピソード2neo R たてすべり出し窓 オペレーターハンドル仕様 幅300mm 高770mm 流行に Hughsroomlive Com



品質保証 Ykk 玄関ドア ヴェナート C09 親子 W1235 H2330 最適な材料 Dkmk Hr



樹脂アルミ複合サッシ 2枚建 引き違い窓 半外付型 爆売りセール開催中 窓タイプ W780 H1170 引違い窓 エピソード Ykk Diy リフォーム Types Ykkap サッシ



オープニング大放出セール Ykkap フレミングj 2枚建 引き違い窓 W1780 H10mm 半外付型 テラスタイプ 複層ガラス 樹脂アングル アルミサッシ 引違い窓 Ykk サッシ リフォーム Diy 公式の Sari Energy Org



アルミサッシ 通販 Life Support Hamaya サッシ 販売 納まり図 引違い窓 半外付 アングル付



代引不可 玄関引戸 Ykkap 80型 内付 Dhs85 1694x 1849 アルミサッシ Syrian Reporter Net



アルミサッシ 通販 Life Support Hamaya サッシ 販売 納まり図 引違い窓 半外付 アングル無



楽天市場 7月はエントリーで全品p10倍 Ykkap フレミングj Fix窓 W300 H970mm Pg 複層ガラス 樹脂アングル Ykk サッシ アルミサッシ リフォーム Diy リフォームおたすけdiy楽天市場店



樹脂アルミ複合サッシ 高所用すべり出し窓 W1640 H370mm Ykkap エピソードneo 複層 装飾窓 高断熱 高遮熱 アルミ樹脂複合窓 リフォームおたすけdiy



Ykkap玄関 断熱玄関ドア Venatod30 エレガント E05 ドア高2330mm 3ed 3e05nz9 08r ノース ウエスト 通販 Yahoo ショッピング



在庫有 Ykkap窓サッシ 装飾窓 エピソード2neo R Fix窓 2 4工法 幅0mm 高1370mm 最安値挑戦 Www Jsht Or Jp



Ykkap フレミングj 2枚建 引き違い窓 寸法 W1780 H570mm 内付型 窓タイプ 複層ガラス アルミサッシ 引違い窓 Ykk サッシ リフォーム Diy Nhu リフォームおたすけdiy 通販 Yahoo ショッピング



D30 Venato 玄関ドア 建具 Ykkap Ykk 10月は楽天カードご利用でポイント10倍 スマートコントロールキー Ykkap W922 H2330mm 断熱玄関ドア リフォーム E01 片開きドア D4 D2仕様 ヴェナート 新設 おしゃれ リフォーム 建材屋 リフォーム建材屋玄関ドア ヴェナートd30



住宅サッシの 新寸法体系



窓 シャッター Apw Apw330のcadデータ一覧 Ykk Ap株式会社



半額品 楽天市場 樹脂アルミ複合サッシ 両たてすべり出し窓 W730 H1370 Ykkap エピソード Type S 複層ガラス Ykk サッシ 建材屋 リフォーム建材屋 激安特価 Blog Belasartes Br



奇跡の再販 洋風すだれ アウターシェード Ykkap 271 W2950 H3100mm 2枚仕様 枠付け デッキ納まり 土間納まり 引き違い窓 引違い 窓 日除け 外側 日よけ Oshade Whd 271 アルミサッシ専門店 通販 Yahoo ショッピング 50 Off Www Skylanceronline Com

コメント
コメントを投稿